• Наличие
    В наличии
Цена по запросу

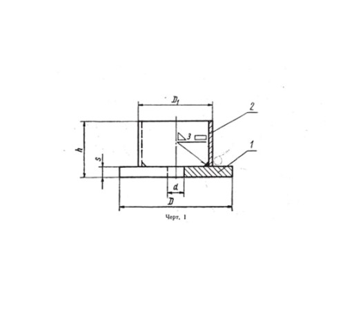
Стаканы для установки пружин подвесок предназначены для надежного крепления и равномерного распределения нагрузки стальных трубопроводов в промышленных системах. Эти элементы являются важной частью трубных опор, обеспечивая устойчивость и долговечность конструкции.

Использование стаканов позволяет значительно повысить безопасность и надежность трубопровода, гася вибрации и предотвращая смещения. Это обеспечивает бесперебойную работу системы и снижает затраты на техническое обслуживание.

Изделия изготавливаются из высококачественных марок стали (09Г2С, 12Х18Н10Т, 12ХМ, сталь 20, сталь 3), что гарантирует их прочность, коррозионную стойкость и длительный срок службы в различных условиях эксплуатации.

Мы предлагаем широкий выбор моделей с различными параметрами: диаметры (90, 130, 165, 185, 225 мм), высота (30, 62, 66, 90 мм) и масса. Возможен индивидуальный заказ для нестандартных проектов.

Отзывов: 0

Нет отзывов об этом товаре.

Вопросов: 0

Пока нет вопросов об этом товаре. Станьте первым!